来春開業予定の共同生活援助 メゾン・ラポールⅡの概要を紹介します。既存のメゾン・ラポール(基幹相談支援センター2階)から50m程度の距離にあり、一括して運営しやすい立地になっています。木造ではありますが、スーパーウォール工法を採用した一般住宅と同様の高断熱・高気密住宅です。
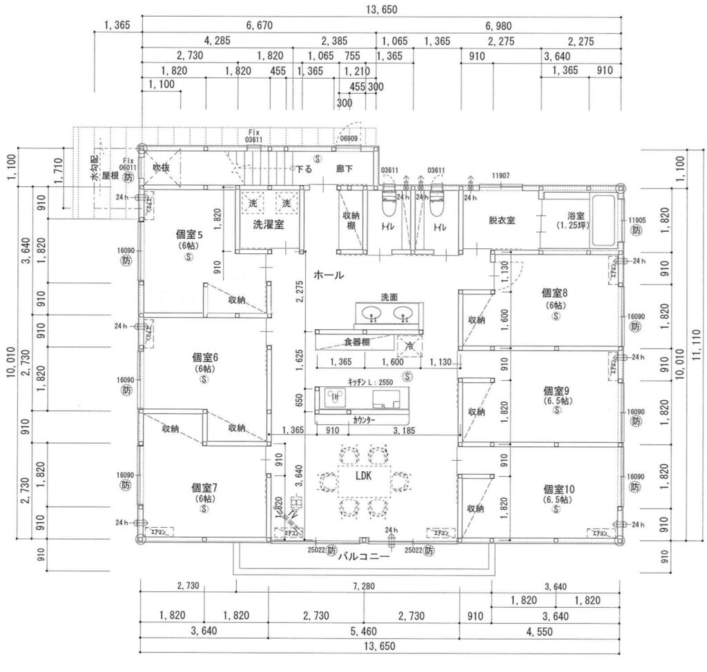
各個室は基準(4.5畳)を超える最低6畳の居住スペース+1畳分の収納を確保しており、1階と2階では玄関が別れた完全分離型の2世帯住宅のような作りです。
多人数が生活することを考慮し、トイレ、洗面、洗濯機は各階に2つ(合計4つ)配置します。
また、1階の相談室には日中のみですがスタッフを配置し、そこからは1階へも2階へもアクセス可能で、有事の際にも素早く対応できます。
さらに、2階は勾配天井となっており、天井高は最高で5mを超える開放感あふれた作りになっています。
定員11名(短期入所1名含む)と聞くと、狭苦しく聞こえるかもしれませんが、敷地を基準いっぱいに使用し、各階の床面積は140㎡を超え、1階と2階を合わせると2棟分の広さを有しているため、十分広く感じられると思います。
我々職員と、設計者の知恵と工夫を凝らした新たなグループホームとなっています。




施設概要
| 名 称 | 共同生活援助 メゾン・ラポールⅡ |
| 所在地 | 岩手県釜石市定内町一丁目9番19号 |
| 床面積 | 1階144.47㎡(43.61坪) 2階142.76㎡(43.09坪) (各個室は6畳以上+収納1畳) |
| 定 員 | 1階 女性4名+短期入所1名 2階 男性6名 合計10+1名 |
| 形 態 | 介護サービス包括型 |
| 設 備 | 個別エアコン 各個室TV、ベッドは完備予定 |
| 費 用 | 自己負担 総額約6万円/月 (賃料2万円,共益費1.5万円,食費2.5万円程度) *賃料は3万円ですが,1万円の補助あり |

